Rezerviraj svoj novi dom,
pokliči 01 292 65 00
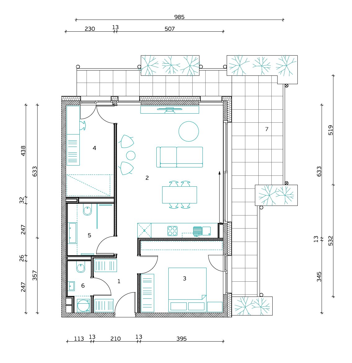
Stanovanje F-1-5
101,4 m2
Prodano
Lega izbranega stanovanja - iskalnik
Izmere stanovanja
Stanovanje F-1-5 | Prodano |
1. Predprostor | 5,5 m² |
2. Bivalni prostor | 32,8 m² |
3. Spalnica | 13,6 m² |
4. Kabinet | 10,1 m² |
5. Kopalnica | 5,5 m² |
6. WC in utility | 2,4 m² |
Stanovanjska površina | 69,9 m² |
7. Terasa (nadkrita) | 26,7 m² |
8. Shramba za kolesa | 4,8 m² |
Skupna površina | 101,4 m² |
Parkirno mesto | 1 PM |
Viseči vrtovi | 10 m² |
Tloris stanovanja
Katalog opreme
Dodatne informacije
Video predstavitev stanovanja
