Rezerviraj svoj novi dom,

pokliči 01 292 65 00

V celoti opremljeno stanovanje E-2-1

92,6 m2

585.000 €

Prosto

Lega izbranega stanovanja - iskalnik

Nadstropja v objektu

S klikanjem po skici lahko izbereš drugo nadstropje. Zelena barva kaže trenutno izbrano nadstropje.

-sobno

m2

Stanovanja v nadstropju

S klikanjem po skici lahko izbereš drugo stanovanje. Temneje obarvano polje kaže trenutno izbrano stanovanje.

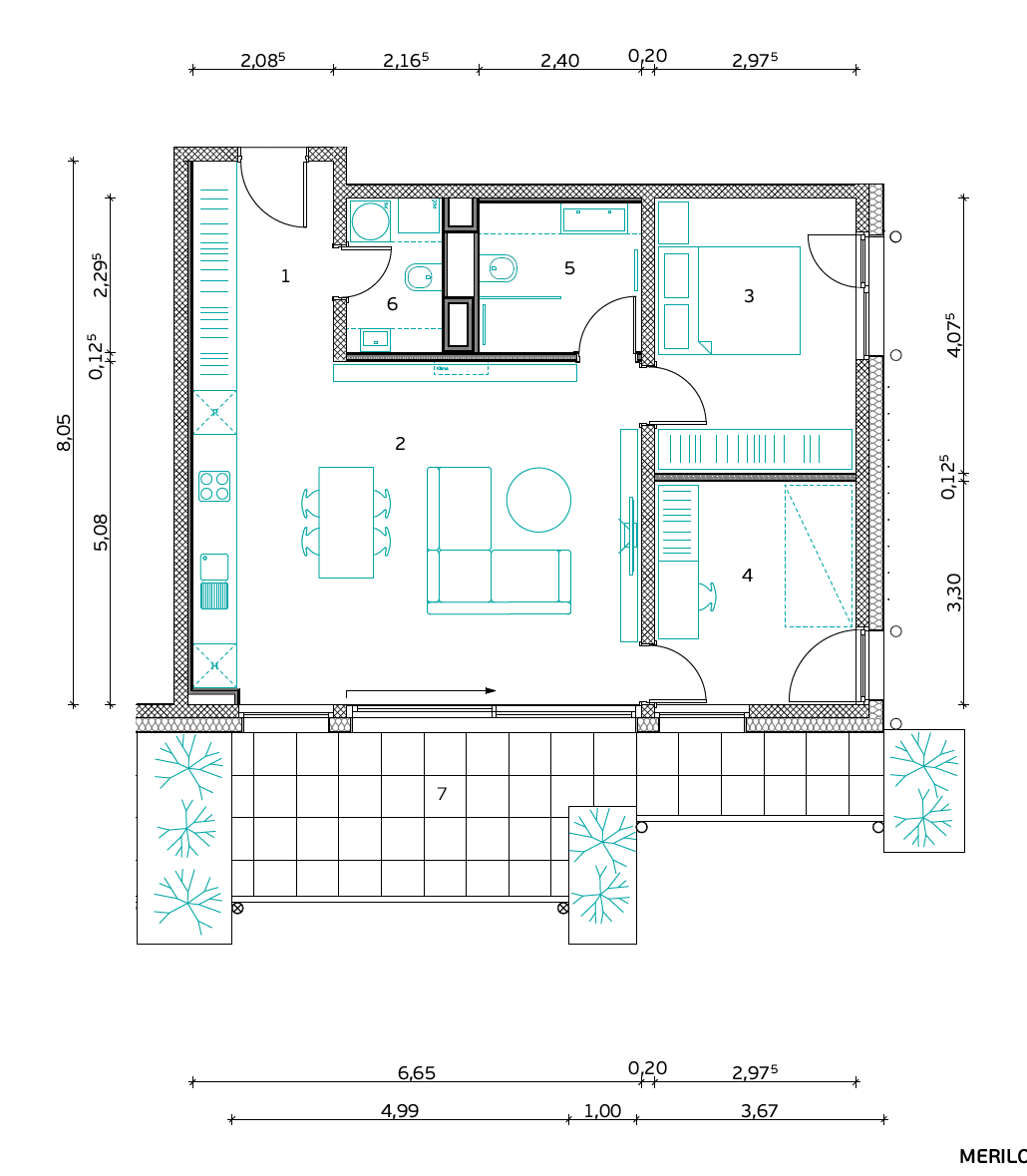
Izmere stanovanja

Stanovanje E-2-1 Prosto
1. Predprostor 6,2 m²
2. Bivalni prostor 33,5 m²
3. Spalnica 12,1 m²
4. Kabinet 9,8 m²
5. Kopalnica 5,2 m²
6. WC in utility 3,1 m²
Stanovanjska površina 69,9 m²
7. Terasa (nadkrita) 17,5 m²
8. Shramba za kolesa 5,2 m²
Skupna površina 92,6 m²
Parkirno mesto 1 PM
Viseči vrtovi 8,6 m²
Cena 585.000 €

V ceno je vključeno pohištvo, izdelano po meri, in vsa notranja oprema, kot je prikazano v spodnji galeriji fotografij – vse, kar potrebujete za takojšnje udobje in brezskrbno bivanje.

V ceno stanovanja so všteta pripadajoča parkirna mesta. Vse cene so z DDV.