Rezerviraj svoj novi dom,

pokliči 01 292 65 00

Stanovanje D-2-4

99,8 m2

432.000 €

Prosto

Lega izbranega stanovanja - iskalnik

Nadstropja v objektu

S klikanjem po skici lahko izbereš drugo nadstropje. Zelena barva kaže trenutno izbrano nadstropje.

-sobno

m2

Stanovanja v nadstropju

S klikanjem po skici lahko izbereš drugo stanovanje. Temneje obarvano polje kaže trenutno izbrano stanovanje.

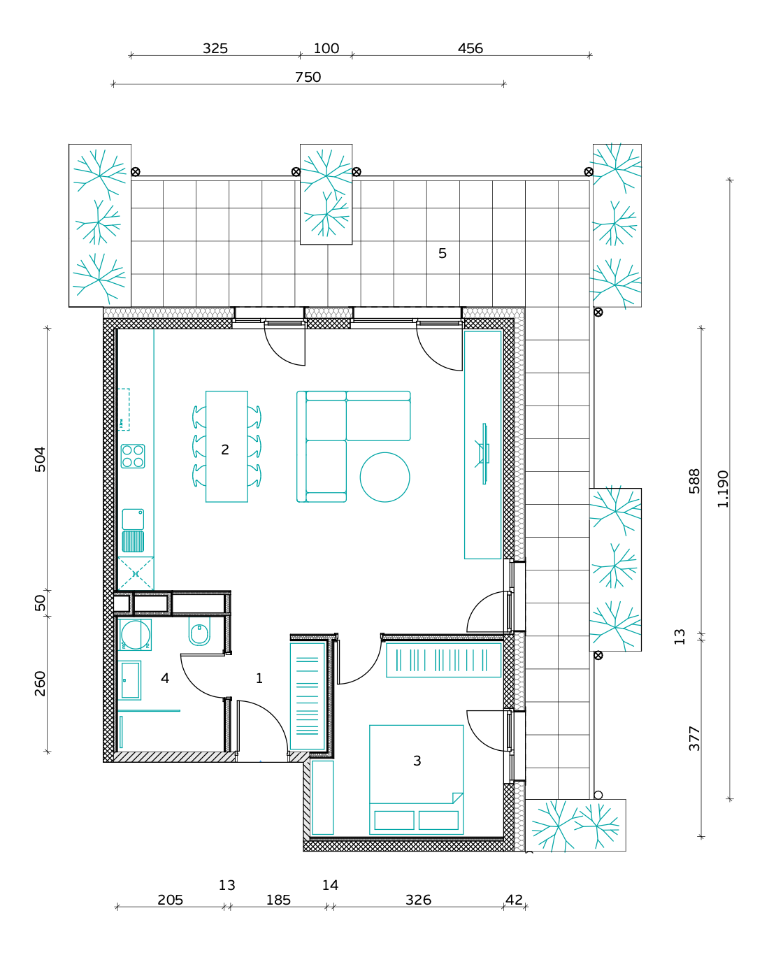
Izmere stanovanja

Stanovanje D-2-4 Prosto
1. Predprostor 3,9 m²
2. Bivalni prostor 42,0 m²
3. Spalnica 13,0 m²
4. Kopalnica 5,3 m²
Stanovanjska površina 64,2 m²
5. Terasa (nadkrita) 31,3 m²
6. Shramba za kolesa 4,3 m²
Skupna površina 99,8 m²
Parkirno mesto 1 PM
Viseči vrtovi 13,6 m²
Cena 432.000 €

V ceno stanovanja so všteta pripadajoča parkirna mesta. Vse cene so z DDV.

Video predstavitev stanovanja

Jurckovo naselje Sprehod po 2S stanovanju A 3 8

Interaktivni 3D sprehod po stanovanju

Prva Hisa Jurckovo naselje 3D A 3 8 original

Opomba! Simbolični grafični 3D sprehod prikazuje tlorisno podobno stanovanje kot izbrano. Lahko so drugačni balkoni, nadstropje, zunanji pogledi ali strani neba.