Rezerviraj svoj novi dom,
pokliči 01 292 65 00
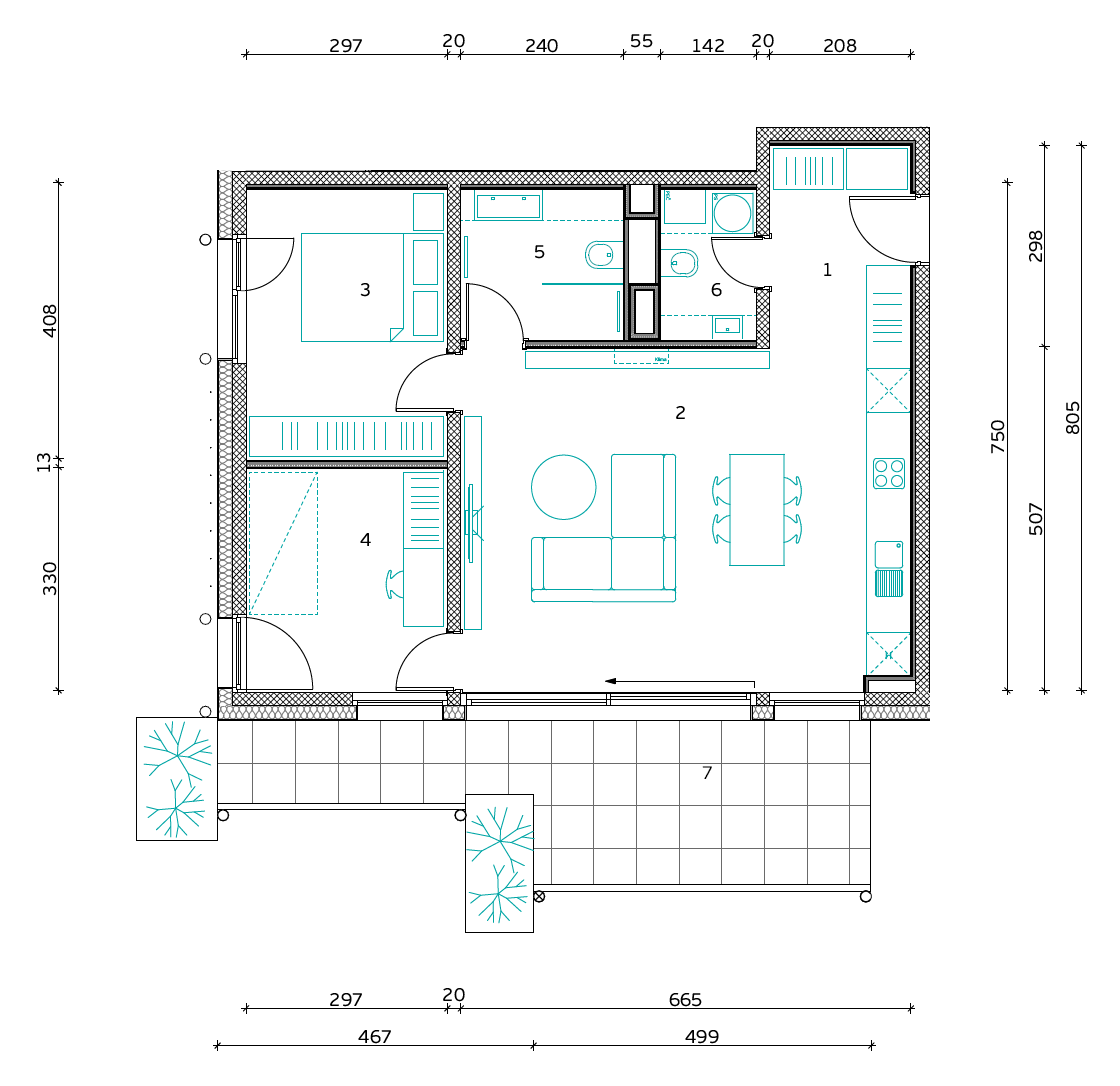
Stanovanje A-3-3
92,9 m2
Prodano
Lega izbranega stanovanja - iskalnik
Izmere stanovanja
Stanovanje A-3-3 | Prodano |
1. Predprostor | 6,2 m² |
2. Bivalni prostor | 33,6 m² |
3. Spalnica | 11,9 m² |
4. Kabinet | 9,8 m² |
5. Kopalnica | 5,3 m² |
6. WC in utility | 3,0 m² |
Stanovanjska površina | 69,8 m² |
7. Terasa (nadkrita) | 17,5 m² |
8. Shramba za kolesa | 5,6 m² |
Skupna površina | 92,9 m² |
Parkirno mesto | 1 PM |
Viseči vrtovi | 4,2 m² |
Tloris stanovanja
Katalog opreme
Dodatne informacije
Video predstavitev stanovanja
